Our “Lean Factory Program” focused on operation optimization that embedded lean six sigma concept in factory design, installation, commissioning and maintenance. Our approaches include 6 main criterion:
Criterial 1 – Budget and Technology Optimization
- Capital Expenditure
- Operational Expenditure
Criterial 2 – Time optimization
- Lead Time
- Takt time
- Cycle time
- Processing time
Criterial 3 – Movement optimization
- Product
- Material
- People
Criterial 4 – Space optimization
- Storage space
- Operational space
Criterial 5 – Bottleneck and stock minimization and management
- Batch management
- Raw material, WIP, and finish good management
Criterial 6 – People and environmental friendly
- Safe, healthy and conducive work environment
We have successfully consult and assist manufacturing industry since 2001 through:
- LFP Relocation
- LFP Relayout
- LFP Redesign
LEAN “FACTORY RELOCATION” PROGRAM
The LFP relocation program, “TOTAL REVAMP” the current operation and bring back the process to drawing board. This due to current operation was not properly design with no connectivity with product, material and people flow, inventory are everywhere and space was not maintain. This approached commonly name as greenfield approaches. The total revamp ROI and saving can be as short as one-year operation. We have assist in factory relocation from China to Malaysia, and factory consolidatio from 3 separate locations into single location. In several case the factory relocation program provide additional capacity increase and modernised the operation.
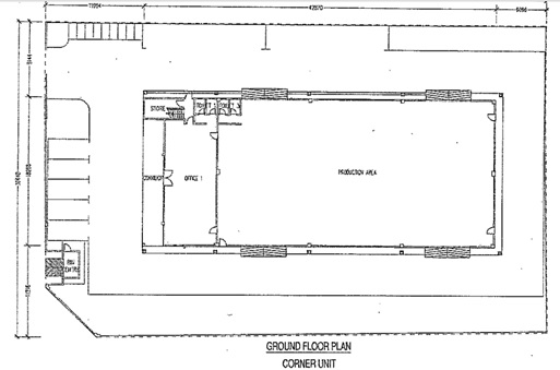
ONLY IN 2019, we have SPECIAL PROGRAM FOR ONLY ONE COMPANY for LFP Relocation program in Johor, Malaysia.
- BRAND NEW
- CORNER UNIT 50,000 sqft
- PREMIER LOCATION @ IParc PTP
- In Between Port of Tanjung Pelepas and Forest City
- Near to Singapore Industrial Area i.e. Jurong and Tuas
- Near to Changi and Senai Airport and connected to all major highway
- LOCK RATE FOR LONG TERM (10 YEARS) LEASE. ONLY @MYR19900/ month

The package included:
- Development of Value Stream Mapping for whole product family
- Proposed Factory Layout
- Report on Current and Potential tangible and Intangible benfit
Advice from our Lean Mentor:
Dr. Edly Ferdin Ramly
Academic Qualification:
Doctor of Philosophy (PhD.) in Mechanical Engineering , Universiti Tun Hussein Onn, Malaysia, 2018. Thesis title: “A diagnosis framework to select operational improvement opportunities”;
Master of Science (MSc.) Engineering with Management, Sheffield Hallam University, UK, 2001;
Bachelor Engineering (BEng. Honour) Manufacturing System with Management, University of Bradford, UK, 1998;
Award Winning Consultant:
- “FELLOW Academy of IEOM”, Highest membership level awarded by Industrial Engineering and Operation Society (IEOM) Southfield, Michigan, USA.
- “IEOM Distinguished Industry Award”, awarded by Industrial Engineering and Operation Society (IEOM) – International Conference on Industrial Engineering and Operation Management, at Bandung Indonesia on March, 2018;
- “Productivity Champion” awarded by Malaysia Productivity Corporation (MPC) on February 2017;
- “IEOM Industry Solution Award”, awarded by Industrial Engineering and Operation Society (IEOM), United State of America on September 2016 at Lawrence Technology University, Detroit, USA;
- “Asia Productivity Organization – Lean Promoter” Presented by Minister – Ministry of Productivity Promotion Sri Lanka, Honourable Minister Basheer Segu Dawood on June, 2014;
- “Productivity Specialist” by Minister of Ministry of International Trade and Industry 2014
- “National Industry Specialist” (Pakar Industri Negara) by Department of Skill Malaysia 2010;

Front View of Factory
LEAN “FACTORY RELAYOUT” PROGRAM
A lean factory production layout, creates a seamless flow of people, material and information. Well-designed lean factories prevent the build-up of inventory and excess equipment. Lean layouts facilitate visual management. They provide a safe, clean environment to expedite work, regardless of the finished goods being produced. Lean environments can have a positive effect on workforce morale. And it’s all about effective use of time. It is easier to clean and straighten the worksite when there’s little in the way of excess equipment, tooling, and inventory. A well-designed layout will contribute to the ease of maintaining a safe and effective workplace. And, if it’s easier to maintain, it will be maintained!
Lean factory relayout into a value-stream layout within the same facility is called a brownfield approach. Others choose to move into a completely new facility, a greenfield approach. While the greenfield approach is preferable to most everyone, it’s not always practical or affordable. Greenfields have their own series of pitfalls. While it is almost easier to have new machinery installed in a new plant, that’s rarely the case. Can you accelerate the production process to create a window of down time to move equipment? Can you outsource some of the production to another facility or supplier?
Our expert will conduct assessment, regardless of the your organization location and goals. We managed at least 5 projects per year especially for Malaysia Productivity Corporation and SME Corp valuable clients.

LEAN “PROCESS REDESIGN” PROGRAM
Process redesign tackle the bottleneck process in order to increase the production output through several strategy including Autonomation. The bottleneck process was identify from our rigorous method of operational process diagnosis.
Contact us for more detail
